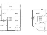
Tipo de Casa 2 pisos |
Cuartos 4 |
Baños 2 |
Medios Baños 1 |
$3,300 / mesalquiler
EN ALQUILER – Encantada, Corrientes | Trujillo AltoPrecio de renta mensual: $3,300Presentamos esta elegante y remodelada residencia disponible para alquiler en la prestigiosa comunidad de Encantada – Corrientes en Trujillo Alto. La propiedad cuenta con 4 amplias habitaciones y 2 ½ baños, ofreciendo un balance perfecto entre estilo, comodidad y eficiencia energética.Su diseño integra sala, comedor, moderna cocina, family room y terraza con acceso a un patio ideal para el disfrute en familia o el ...
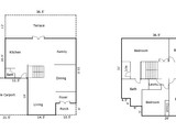
Tipo de Casa 2 pisos |
Cuartos 4 |
Baños 2 |
Medios Baños 1 |
